Skip to content
Menu
Paffis Reisen
  • Blog
  • Reisen
    • Europa
      • Deutschland
      • Italien
      • Lettland-2025
      • Litauen-2025
      • Österreich
      • Spanien-2024
    • Afrika
      • Namibia
        • Namibia-2023
      • Tanzania
        • Tanzania-2019
        • Tanzania-2016
  • Weltreise
    • Reiseroute
    • Mexiko-2016
    • Hawaii-2017
    • Neuseeland-2017
    • Australien-2017
    • Kambodscha-2017
    • Thailand-2017
    • Vietnam-2017
    • Singapur-2017
    • Namibia-2017
  • Fernreisemobil
  • Über uns
  • Impressum & Datenschutz
Paffis Reisen

Selbstausbau: Rahmenlackierung

Posted on 10. Februar 202112. Oktober 2025

Nun sind schon einige Monate vergangen und wir möchten mit ein paar Bildern den Fortschritt unseres Umbaus veranschaulichen. Nachdem wir den Feuerwehrkoffer abgebaut und die ganzen Kabeln im Rahmen bis in die Kabine zurückgebaut haben, mussten wir uns um einen neuen Unterstellort kümmern. Hier noch die letzten Impressionen des ersten Unterstellortes…

Wir brauchten dringend eine saubere Garage mit Licht und Strom sowie genügend Platz zum Schweissen und zum Handwerken. Letztes Jahr Mitte 2020 hatten wir dann das Glück, direkt in unserer Gemeinde einen komforttablen und großzügigen Stellplatz auf einem alten Gehöft zu finden und dauerhaft anzumieten. Unsere alten Küchmöbel haben dort nun ihren Platz gefunden und wir konnten endlich mit der Aufbereitung des Rahmens beginnen.

Dafür wurde der Rahmen gründlich gereinigt, abgeschleift, von Fett gelöst und dann mit der silbergrauen Rostschutzgrundierung Ovagrundol Primer 2-mal gestrichen.

Unser LKW hat nur wenig Rostansätze, was die Aufgabe sehr erleichtert. Problematisch ist momentan eher das Wetter und die eisigen Temperaturen, die die Farbe schlecht trocknen lässt. Wir brauchen daher viel Geduld.

Zudem ist langes Arbeiten kaum möglich, eine Heizung ist in der Garage nicht vorhanden. Mittlerweile ist der Ramen bereits schon einmal mit schwarzem Chassislack O.H. gestrichen. Der 2. Anstrich muss temperaturbedingt noch warten.

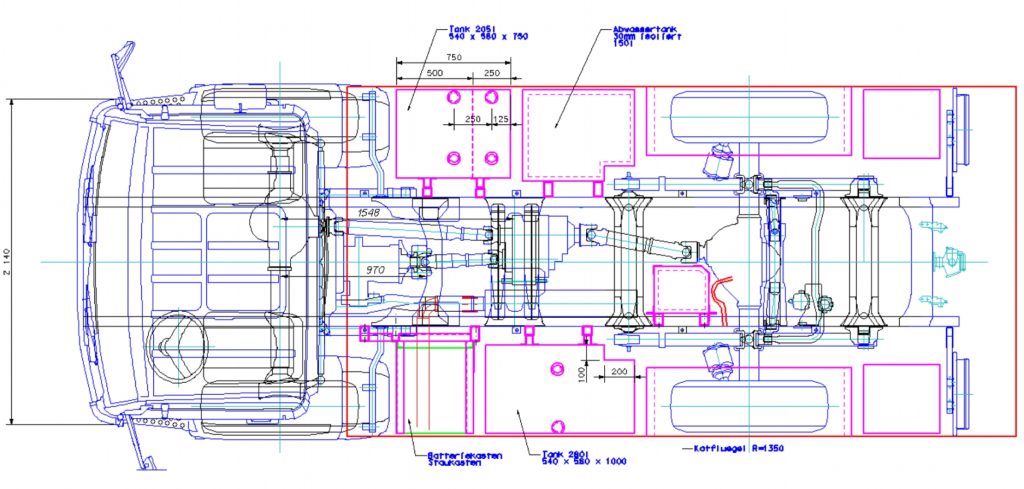
Während der Trocknungsphasen basteln wir weiter an unseren Planungszeichnungen. Roland plant die notwendigen Aufhängungen / Anbauten für die Druckluftbehälter, Batterien und beiden Dieseltanke. Der Platz ist recht begrenzt bei dem Radstand von 3090 mm, daher lassen wir uns Dieseltanke auf Mass fertigen. Etwa 280 Liter auf der Fahrerseite und nochmals ca. 200 Liter, aufgeteilt auf 2 Kammern auf der Beifahrerseite. Ein Pipitank ist im Fahrzeugrahmen geplant und die Druckluftbehälter verschwinden hinten unter dem Fahrzeugrahmen. Das Auspuffendrohr wird nach vorne hinter das Vorderrad verlegt. Platz bleibt dann noch für den Batteriekasten und einen kleinen Staukasten auf der Fahrerseite, sowie einen Abwassertank von etwa 150 Liter auf der Beifahrerseite.

Ich persönlich zeichne weiter an dem Grundriss unseres Koffers. Die ersten Ideen wurden alle wieder verworfen, nun sind wir beide mit dem neuen Konzept sehr zufrieden. Die Länge des Koffers bleibt bei 4400 mm. Da sind wir fast am Limit. Wir werden es auch bei der geplanten Breite von 2300 mm belassen.

Wir haben unsere Bedürfnisse an eine Wohnkabine nochmal intensiv diskutiert und uns dazu entschlossen, mit einer großzügigeren Sitzecke weiter zu planen. Der verbleibende Platz zwischen der Sitzecke vorne und dem festen Bett hinten, wird auf der Fahrerseite mit einer Küchenzeile geschlossen. Der Eingang bekommt die beliebte Doppelfunktion als Dusche und Dreckschleuse mit einer Ausbuchtung für das WC als Selbstbau Trocken-Trenntoilette mit kleinem Waschbecken. Die Sitzecke planen wir ohne Podest um zum einen uns einen Durchstieg zum Fahrerhaus nicht zu verbauen und zum anderen etwas mehr Luft für Oberschränke zu haben. Der Platz unter den Sitzen sieht nach unseren Plänen noch ausreichend aus, um den größten Teil der Technik (Dieselluftheizung, Elektrik) zu beherbergen. Für Wasserspeicher mit der zugehörigen Wasserverteilung und Filtrierung opfern wir einen Teil des Stauraums unter dem Bett.

"Die Wildnis ist es , die die Welt bewahrt"

Henry David Thoreau

Storys and News

  • Instagram
auf der Abenteuer Allradmesse 2025 bei bestem Wetter

Aktuelle Beiträge

  • Lettland – Cape Kolka
  • Lettland – Stadt Riga
  • Lettland – Riga
  • Lettland – Schloss Rundale
  • Litauen – Berg der Kreuze

Videos


Biken Fernreisemobil Kili-Besteigung News Wandern Weltreise

Count per Day

  • 160180Besucher gesamt:
  • 42Besucher heute:
  • 1Besucher momentan online:

Login

  • Anmelden
  • Feed der Einträge
  • Kommentar-Feed
  • WordPress.org
©2026 Paffis Reisen | WordPress Theme by Superbthemes.com
We use cookies on our website to give you the most relevant experience by remembering your preferences and repeat visits. By clicking “Accept All”, you consent to the use of ALL the cookies. However, you may visit "Cookie Settings" to provide a controlled consent.
Cookie SettingsAccept All
Manage consent

Privacy Overview

This website uses cookies to improve your experience while you navigate through the website. Out of these, the cookies that are categorized as necessary are stored on your browser as they are essential for the working of basic functionalities of the website. We also use third-party cookies that help us analyze and understand how you use this website. These cookies will be stored in your browser only with your consent. You also have the option to opt-out of these cookies. But opting out of some of these cookies may affect your browsing experience.
Necessary
immer aktiv
Necessary cookies are absolutely essential for the website to function properly. These cookies ensure basic functionalities and security features of the website, anonymously.
CookieDauerBeschreibung
cookielawinfo-checkbox-analytics11 monthsThis cookie is set by GDPR Cookie Consent plugin. The cookie is used to store the user consent for the cookies in the category "Analytics".
cookielawinfo-checkbox-functional11 monthsThe cookie is set by GDPR cookie consent to record the user consent for the cookies in the category "Functional".
cookielawinfo-checkbox-necessary11 monthsThis cookie is set by GDPR Cookie Consent plugin. The cookies is used to store the user consent for the cookies in the category "Necessary".
cookielawinfo-checkbox-others11 monthsThis cookie is set by GDPR Cookie Consent plugin. The cookie is used to store the user consent for the cookies in the category "Other.
cookielawinfo-checkbox-performance11 monthsThis cookie is set by GDPR Cookie Consent plugin. The cookie is used to store the user consent for the cookies in the category "Performance".
viewed_cookie_policy11 monthsThe cookie is set by the GDPR Cookie Consent plugin and is used to store whether or not user has consented to the use of cookies. It does not store any personal data.
Functional
Functional cookies help to perform certain functionalities like sharing the content of the website on social media platforms, collect feedbacks, and other third-party features.
Performance
Performance cookies are used to understand and analyze the key performance indexes of the website which helps in delivering a better user experience for the visitors.
Analytics
Analytical cookies are used to understand how visitors interact with the website. These cookies help provide information on metrics the number of visitors, bounce rate, traffic source, etc.
Advertisement
Advertisement cookies are used to provide visitors with relevant ads and marketing campaigns. These cookies track visitors across websites and collect information to provide customized ads.
Others
Other uncategorized cookies are those that are being analyzed and have not been classified into a category as yet.
SPEICHERN & AKZEPTIEREN